Fondazione Santina costruisce una cappella nella Diocesi di Garissa a Bura Tana in ricordo di Carlo Carrara. Ecco il video:
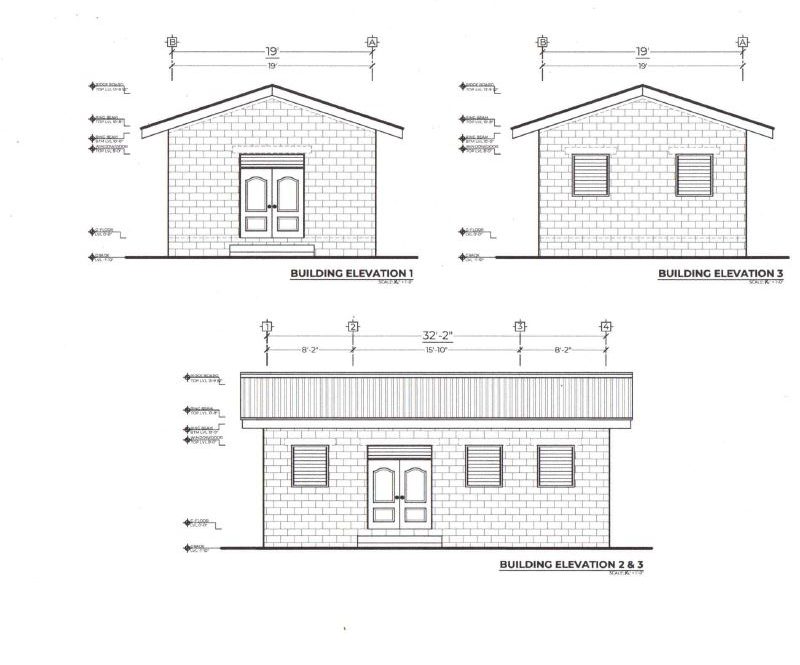
Padre Rolando, parroco della Parrocchia di San Giuda Taddeo chiede alla nostra Fondazione la somma di Euro 5000 per costruire una piccola cappella a Bura Tana, qui potete vedere la richiesta del padre, era il giorno 9 ottobre 2024. Il Consiglio di Amministrazione approva la richiesta per l’anno 2026


Nello scorso gennaio viene inviata la somma pattuita. Ecco il nostro bonifico in data 18 gennaio 2026

Padre Rolando riceve la somma e ci invia ricevuta in data 26 gennaio 2026

La bella notizia arriva per noi da Selvino (Bergamo) quando la Signora Mariangela decide di onorare la memoria del marito Carlo Carrara sovvenzionando l’intera opera. Ecco in allegato il suo bonifico in data 9 febbraio 2026

LETTERA DI MARIANGELA TIRABOSCHI PER IL GIORNO DELLA INAUGURAZIONE IL 15 MARZO 2026
Carissimi amici di Bura Tana, è con grande gioia che oggi vedo realizzato questo progetto per la costruzione di una una cappella per la vostra comunità in memoria di mio marito Carlo Carrara che mi ha lasciato il 16 agosto 2025. Abbiamo vissuto insieme per 53 anni. Carlo è stato un marito e un compagno di vita meraviglioso e per me è stato tutta la mia vita, come io lo sono stata per lui. Per questo ho voluto ricordare e onorare la sua memoria con questa cappella. Oggi, anche da lontano ma vicina con il cuore, con altrettanta gioia partecipo con voi e don Gigi all’inaugurazione. Ora che la cappella è una realtà spero che anche voi, carissimi amici di Bura Tana possiate praticare e manifestare la vostra fede e la vostra preghiera come abbiamo fatto io e Carlo sempre insieme. Con affetto Mariangela
